×
INICIO VENTAS ALQUILERES INVERTIR INSTITUCIONAL TASACIONES CONTACTO
Propiedad en venta

JUAN B. JUSTO 389 (San Martín)


138.89 m2
2
Precio

U$S 160.000

Descripción

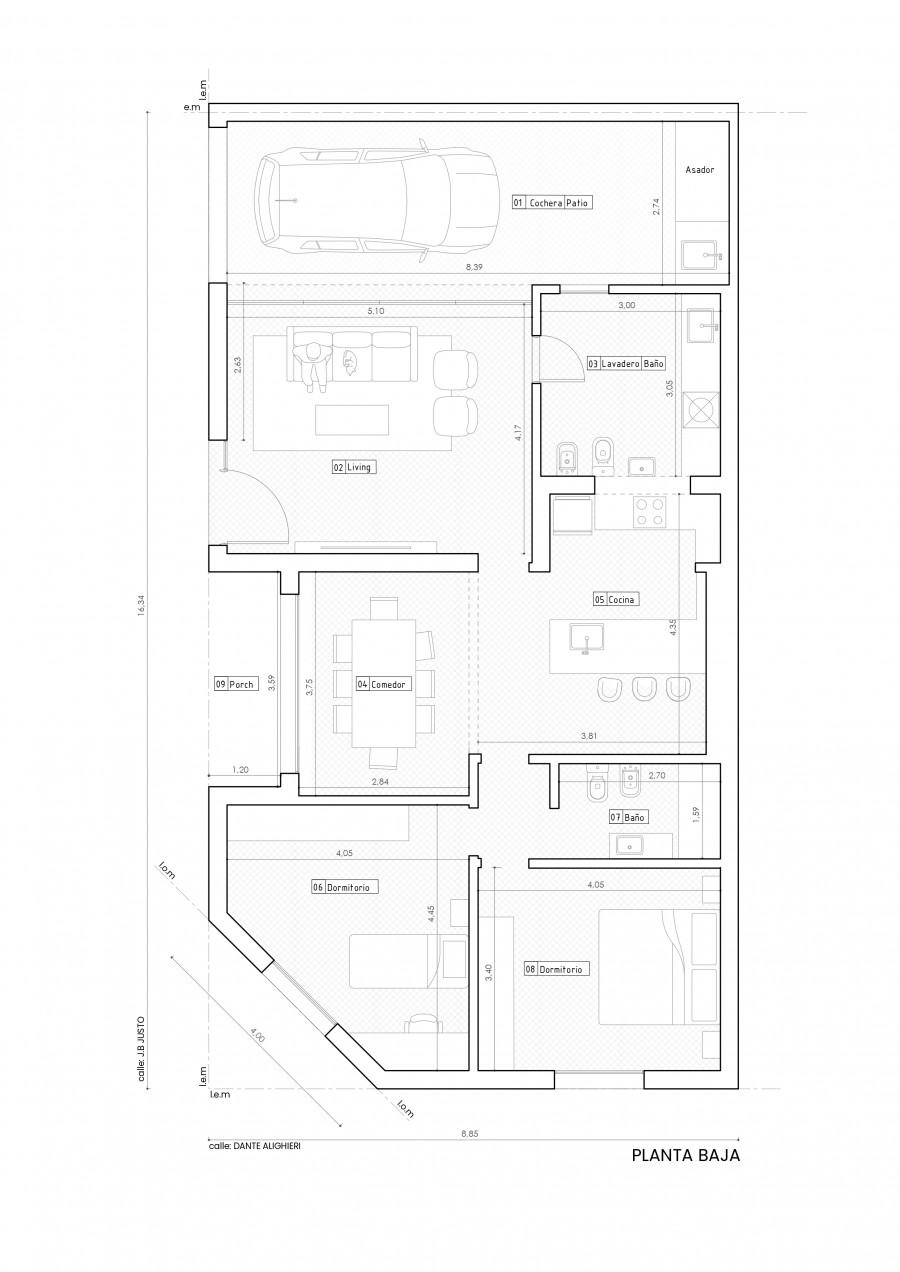
Casa en construcción

Excelente oportunidad de inversión y vivienda.

Casa en construcción de 138.89 m², con un diseño moderno y funcional, pensada para ofrecer confort y calidad de vida.

La propiedad contará con dos dormitorios, cocina, comedor, living, lavadero, baño de servicio y baño completo, además de garaje y patio, brindando espacios amplios y bien distribuidos.

La vivienda dispone de todos los servicios.

Medidas: 

  • 110.74 m2 cubiertos
  • 3.85m2 porch
  • 24.30m2 descubiertos (patio)

 

Fecha estimada de finalización de obra: marzo/abril 2026.

Una oportunidad para asegurar hoy una propiedad a estrenar en el corto plazo.

¡Consultanos para más información!

Tipo

CASA

Consultá por esta propiedad
Galeria de fotos
Ubicación
Street View

¿Necesitas tasar tu propiedad?

Conocé cuanto vale tu propiedad. Completá el formulario y nos comunicaremos a la brevedad.